Maison à vendre à Martinvast

137 800€

Description

Martinvast, 6 min de Cherbourg-en Cotentin, maison à rénover entièrement de 100 m² édifié sur 344 m² de terrain avec garage et cellier
RDC : séjour, salon, cuisine, sde, wc
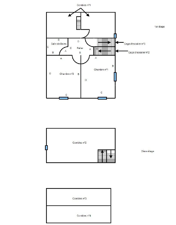
étage : 3 chambres, salle de bains, grenier

A ≤ 50
B 51 à 90
C 91 à 150
D 151 à 230
E 213 à 330
F 331 à 450
G ≥ 450

Consommation 339 Kwh/m²/An

G(436)

A ≤ 5
B 6 à 10
C 11 à 20
D 21 à 35
E 36 à 55
F 56 à 80
G ≥ 80

Émission GES 11 Kg/co²/AN


G(122)

Les informations sur les risques auxquels ce bien est exposé sont disponibles sur le site Georisques : www.georisques.gouv.fr

Vue d'ensemble

  • ID 602
  • Type
  • Chambres 3
  • Salle de bain 2
  • Garages 1
  • Superficie 100 m2
  • Terrain 344 m2
  • Année de construction 1940

Détails

  • ID de propriété 602
  • Prix 137 800€
  • Type De Bien
  • Statut
  • Chambres 6
  • Chambres 3
  • Salle de bain 2
  • Année de construction 1940
  • Superficie 100 m2
  • Superficie des terres 344 m2
  • Garages 1
  • De la zone de Garage 18 m2
  • Honoraires charge acquéreur 7800
  • Prix honoraires inclus 137800
  • Référence 602
  • DPE G (436)
  • GES G (122)
  • Estimation coût annuel electricité 2022 min 5380 e et max 7330 e

Les Plans D'Étage

Étage 1

Maisons Similaires Que Vous Pouvez Aimer

Comparer

Maison à vendre à Martinvast

Nicolas GUILLOTTE

Agent Immobilier