Maison à vendre à Equeurdreville

Prix sur demande

Description

Equeurdreville-Hainneville – Maison à usage d’habitation, située à proximité des commodités et de la mer, édifiée sur sous-sol et offrant la possibilité de plain-pied.

  • Sous-sol : cave, chaufferie

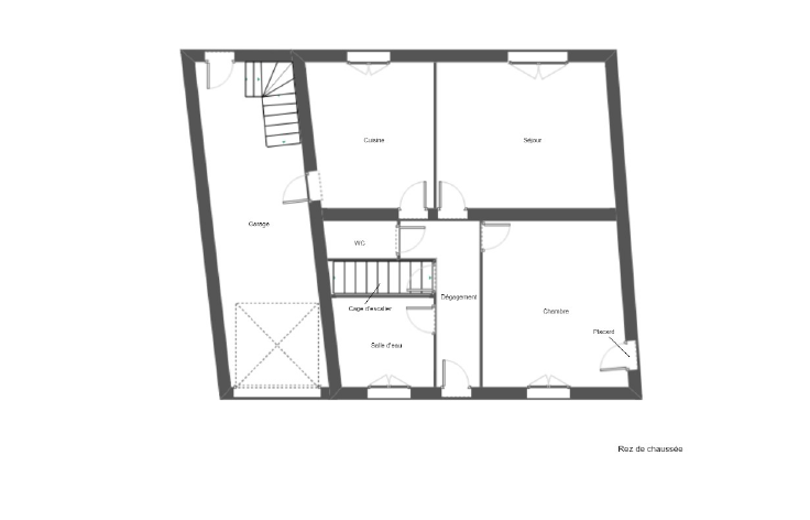
  • Rez-de-chaussée : entrée, couloir, salle de douches, WC, cuisine, séjour, chambre, garage

  • Étage : grenier

À l’extérieur, un jardin clos de murs de 255m² offre un espace agréable.

A visiter sans tarder!

A ≤ 50
B 51 à 90
C 91 à 150
D 151 à 230
E 213 à 330
F 331 à 450
G ≥ 450

Consommation 391 Kwh/m²/An

F(391)

A ≤ 5
B 6 à 10
C 11 à 20
D 21 à 35
E 36 à 55
F 56 à 80
G ≥ 80

Émission GES 71 Kg/co²/AN

F(71)

Les informations sur les risques auxquels ce bien est exposé sont disponibles sur le site Georisques : www.georisques.gouv.fr

Vue d'ensemble

  • ID 571
  • Type
  • Salle de bain 1
  • Garages 1
  • Superficie 50 m2
  • Terrain 255 m2
  • Année de construction 1950

Détails

  • ID de propriété 571
  • Prix Prix sur demande
  • Type De Bien
  • Statut
  • Chambres 1
  • Salle de bain 1
  • Année de construction 1950
  • Superficie 50 m2
  • Superficie des terres 255 m2
  • Garages 1
  • Référence 571
  • Estimation coût annuel électricité (2021) min 1 290 € max 1 790 €

Les Plans D'Étage

Étage 1

Vidéo

Maisons Similaires Que Vous Pouvez Aimer

Comparer

Maison à vendre à Equeurdreville

Yohevan Travert

Agent Immobilier